• Ponte Nuovo (VR) appartamento panoramico quattro locali

  • Ponte Nuovo (VR) appartamento panoramico quattro locali
  • Ponte Nuovo (VR) appartamento panoramico quattro locali
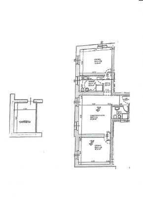
  • A due passi da Ponte Navi, comodo al centro storico di Verona ed all’Università, in fabbricato con ascensore, ristrutturato con finiture di pregio, mai abitato, climatizzato, appartamento composto da ingresso, soggiorno con angolo cottura, due ampie camere da letto, doppi servizi. Soffitta. Disponibilità immediata. Attestazione energetica in fase di rilascio (ACE G) Immobiliare Scrimiari sas Tel 0458034835 oppure 3486402552
    • EUR
  • Rispondi a: antonioturlon@libero.it

Annunci simili

Appartamento di prestigio 200 MQ. A 400 metri dalla METRO Cornelia, con doppio ingresso,...

720.000.00

EUR

Rif.V018 Lecce centro a ridosso della zona San Lazzaro proponiamo in vendita incantevole...

250000

EUR

Mansarda di 40mq a pochi passi dal mare a Riccione, dispone di soggiorno con angolo...

110000

EUR

PIÙ VISITATI

Imperia On. - zona Spianata Immobiliare Luzzi vende prestigioso appartamento sito...

1100000

EUR

Chiavari (GE) - centro storico - Via Ravaschieri Stupendo attico nel pieno centro...

795000

EUR

Appartamento al primo piano composto da ingresso-corridoio, tinello con angolo cottura...

;

Commenti